

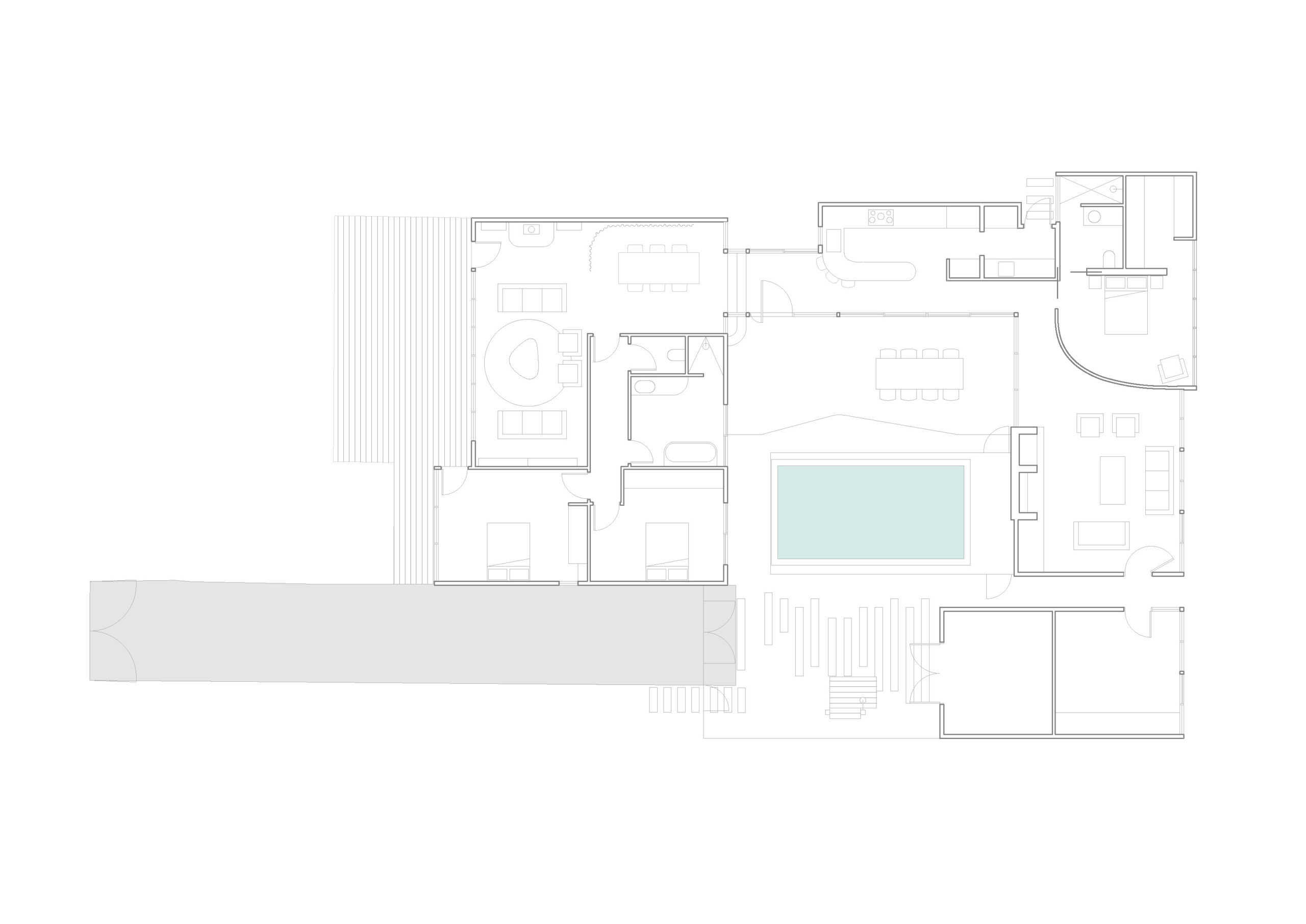
This mid-century inspired extension in Rye, takes its cues from the original two-bedroom beach house, which is largely preserved and restored. The new kitchen and living spaces wrap around a large private outdoor terrace and pool, featuring stone floors, lining board ceilings and floor-to-ceiling North-facing windows.
Raised sections of ceiling and a series of highlight windows flood the interior with natural light and frame views of the weather rolling in from the South. Sustainably sourced timber cladding and a rich earthy colour palette ensure the built elements blend into the surrounding garden, while a mural adds the last playful touch, befitting the era and casual coastal environment.
Pleysier Perkins
Berit Barton
Lisa Biggs
Georgina Oakley
Builder
Photography
Milne Builders & Plumbers